维邦地产|诚邀共筑商业新地标
在城市的脉搏上,重塑商业想象
成熟社区旺铺,多元面积可选,诚邀优质商家共赢未来。
地处成熟居住板块,依托稳定客流与便捷交通,维邦旗下金钰府、紫雍时代广场、金钰缦岛、金钰名筑四大商业项目同步招商,多种面积、灵活格局商铺面向市场公开招募,为品牌发展提供优质经营空间。
在这里,我们不只是招商,更是寻找志同道合的同行者,共同书写城市商业的新篇章。
01.维邦·金钰府
商界常言,商业价值的核心,始终在于区位与客流。金钰府商业精准占位核心地段,以优越位置构筑优质经营场景。
项目地处东胜区团结路与乌审西街交汇处,周边成熟社区环绕、教育资源集聚、生活配套完。商铺位于项目东侧内街商业街,紧邻地库出入口两侧,日常人流动线清晰,社区消费基础扎实,经营氛围浓厚。
项目为准现房状态,可提前规划装修方案。
内街商业 - 110:建筑面积约 126.94㎡,层高 6.08 米,分隔二层后使用面积约 253㎡(已做内部二层分隔)
内街商业 - 111:建筑面积约 124.24㎡,层高 6.08 米,分隔二层后使用面积约 248㎡
内街商业 - 116:建筑面积约 124.24㎡,层高 6.08 米,分隔二层后使用面积约 248㎡(已做内部二层分隔)


02.紫雍时代广场
占位康巴什北区宜居生活板块,依托大型社区稳定客流,聚焦家门口一站式消费需求,商业氛围成熟,消费群体稳定。
项目已建成,现房招商,即租即装即经营。
商铺层高约 6 米,空间开阔通透,可灵活分隔布局,一层投入享双层使用空间,适配餐饮、零售、生活服务等多种经营需求。
S4-104:建筑面积约 87.26㎡,分隔二层后使用面积约 195㎡
S4-106:建筑面积约 95.15㎡,分隔二层后使用面积约 210㎡
S4-108:建筑面积约 95.15㎡,分隔二层后使用面积约 210㎡


我们追求的不仅是商业交易的发生,更是城市生活方式的引领与升级。
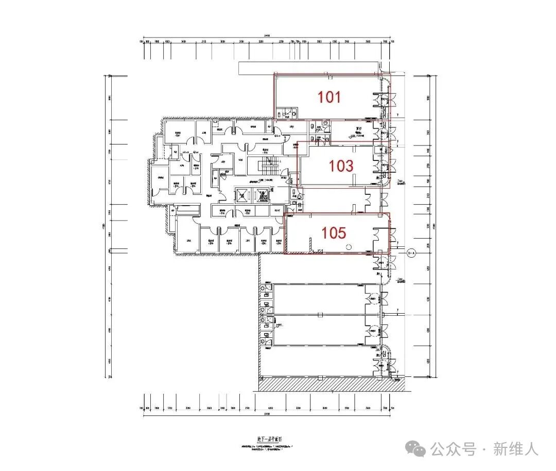
03.维邦·金钰缦岛
择址东胜区城南核心吉劳庆南路以西,京拉线以北,商铺地处项目主入口南侧,昭示性强、曝光度高,是往来客流必经之处,商铺展示面良好,利于品牌形象呈现与日常经营。
项目建设中,提前招商预约选铺,预计2026年7月具备装修条件。
3-101:建筑面积约 95.01㎡,层高 3.5 米
3-103:建筑面积约 69.41㎡
3-105:建筑面积约82.11㎡,层高4.1米



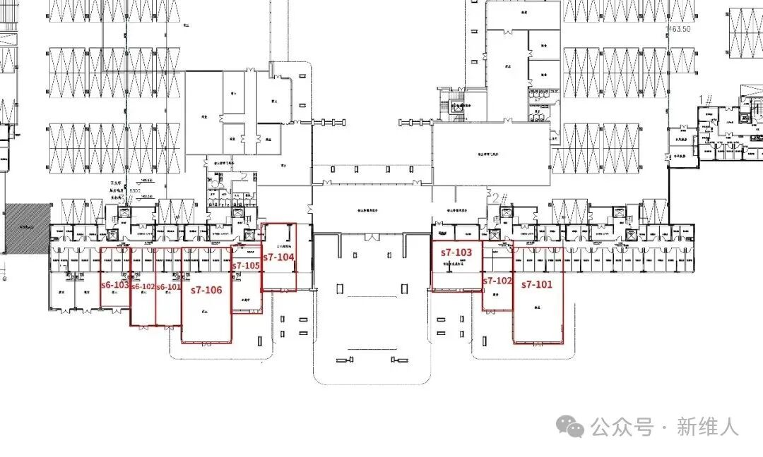
04.维邦·金钰名筑
坐落于东胜铁西一期核心居住板块,东胜区第九小学北侧。周边居住氛围浓厚、家庭客群集中,消费需求旺盛。
全主力商铺层高约6米,空间利用率高,从精致小铺到整层大面积户型一应俱全,可满足餐饮、服务、体验等多类型品牌规划。
项目建设中,提前招商锁定席位,预计2026年7月具备装修条件。
S6-101 建筑面积:90㎡,分隔二层后使用面积 ≈150㎡
S6-102 建筑面积:84㎡,分隔二层后使用面积 ≈144㎡
S6-103建筑面积:82㎡,分隔二层后使用面积 ≈132㎡
S7-101建筑面积:210㎡,分隔二层后使用面积 ≈365㎡
S7-102建筑面积:90㎡,分隔二层后使用面积 ≈148㎡
S7-103建筑面积:95㎡,分隔二层后使用面积 ≈190㎡
S7-104建筑面积:73㎡,分隔二层后使用面积 ≈146㎡
S7-105建筑面积:87㎡,分隔二层后使用面积 ≈142㎡
S7-106建筑面积:210㎡,分隔二层后使用面积 ≈365㎡



05.诚意招商 聚力共赢
我们始终坚信,入驻商户的稳健发展,才是商业项目长久向好的核心支撑。为此,维邦地产秉持合作共赢理念,推出极具诚意的招商扶持政策:
品牌优先:连锁品牌可优先洽谈合作,享有优先选铺权
租金支持:符合条件的入驻商户,可享6 个月 —3 年的免租期
装修支持:根据经营业态及装修标准,可享相应装修补贴,具体面议
我们优先引入全国连锁品牌与行业优质品牌,同时欢迎本土特色商户、实力独立门店洽谈合作。针对不同品牌定位与经营需求,我们将量身打造专属合作方案,实现共赢发展。
城市不断向前,商业持续焕新。
维邦地产与时代同频、与城市共生,顺势而为、恰逢其时。
我们寻找的,不只是入驻商户,更是携手深耕这片热土、共建商业未来、共享发展成果的事业合伙人。
📌 期待与您携手,共筑城市商业新地标
招商电话
苏琛帅经理177 0485 6666